Аналитика

Цифровая фотограмметрия, картография и землеустройство
Текущее время: 23 апр 2025 14:55

Часовой пояс: UTC + 2 часа




Начать новую тему Ответить на тему  [ Сообщений: 4 ] 
Автор Сообщение
 Заголовок сообщения: "Шлейф"
СообщениеДобавлено: 05 дек 2015 18:19 
Гуру
Гуру
Аватара пользователя

Зарегистрирован:
22 сен 2007 16:09
Сообщения: 382
Откуда: м.Львiв
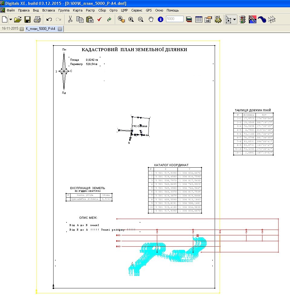
Доброго дня. Чомусь при пересовуваннi таблицi за нею тягнеться "шлейф" i якийсь масштаб 1:1000 в центрi. Дякую.


Вложения:
01-3.jpg
01-3.jpg [ 123.3 Кб | Просмотров: 14037 ]
01-2.jpg
01-2.jpg [ 121.09 Кб | Просмотров: 14037 ]
01-1.jpg
01-1.jpg [ 91.79 Кб | Просмотров: 14037 ]

_________________
Більшість хороших програмістів виконують свою роботу не тому, що очікують оплати або визнання, а тому, що отримують задоволення від програмування.
Вернуться к началу
 Профиль  
 
 Заголовок сообщения: Re: "Шлейф"
СообщениеДобавлено: 06 дек 2015 00:04 
Гуру
Гуру

Зарегистрирован:
18 апр 2007 11:55
Сообщения: 2299
Откуда: Vinnytsia
Если масштаб объекта отличается от масштаба карты, то при включенном "Показ центров" отображается (не печатается) масштаб объекта возле центра объекта.

_________________
Команда разработчиков Digitals
(наш e-mail и ICQ находятся в меню Помощь|О программе)
Новичкам сюда | Новые возможности программы | Купить Digitals


Вернуться к началу
 Профиль Отправить email  
 
 Заголовок сообщения: Re: "Шлейф"
СообщениеДобавлено: 11 янв 2016 10:36 
Гуру
Гуру
Аватара пользователя

Зарегистрирован:
22 сен 2007 16:09
Сообщения: 382
Откуда: м.Львiв
А як це виправити (привести до одного масштабу)? Дякую.

_________________
Більшість хороших програмістів виконують свою роботу не тому, що очікують оплати або визнання, а тому, що отримують задоволення від програмування.


Вернуться к началу
 Профиль  
 
 Заголовок сообщения: Re: "Шлейф"
СообщениеДобавлено: 11 янв 2016 14:45 
Гуру
Гуру

Зарегистрирован:
18 апр 2007 11:55
Сообщения: 2299
Откуда: Vinnytsia
Руслан Пархуць писал(а):
А як це виправити (привести до одного масштабу)? Дякую.

Сброс коэффициента масштабирования объектов

_________________
Команда разработчиков Digitals
(наш e-mail и ICQ находятся в меню Помощь|О программе)
Новичкам сюда | Новые возможности программы | Купить Digitals


Вернуться к началу
 Профиль Отправить email  
 
Показать сообщения за:  Поле сортировки  
Начать новую тему Ответить на тему  [ Сообщений: 4 ] 

Часовой пояс: UTC + 2 часа


Кто сейчас на конференции

Сейчас этот форум просматривают: нет зарегистрированных пользователей и гости: 1


Вы не можете начинать темы
Вы не можете отвечать на сообщения
Вы не можете редактировать свои сообщения
Вы не можете удалять свои сообщения
Вы не можете добавлять вложения

Найти:
Перейти:  
Powered by phpBB © 2000, 2002, 2005, 2007 phpBB Group
Русская поддержка phpBB